Save to Favorites
Print
Share

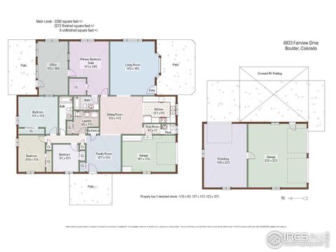
Welcome to 6833 Fairview Drive-a home lovingly and meticulously maintained by the same owners for over 55 years. Situated on a generous lot backing directly to open space, this property offers the ideal combination of privacy, beautiful views, and convenience to all that Boulder has to offer. The residence exudes warmth and pride of ownership, providing a solid foundation for comfortable living. Inside, you'll find timeless care and thoughtful upkeep allowing for an easy move-in while also offering the opportunity to update and personalize to your taste. Enjoy beautiful hardwood floors, generous sized rooms throughout and a nice open layout with newer major mechanicals. A rare highlight of this property is that in addition to the attached one car garage, there is an expansive three-car detached heated garage with a workshop, 220 volt, A/C and water plus covered RV parking, perfect for hobbyists, storage, or additional workspace. With its prime setting, versatile spaces, and direct access to open space, this property offers a rare opportunity to make your home in one of Boulder's most sought-after neighborhoods.

DAYS ON MARKET 6 LAST UPDATED 9/26/2025
TRACT South Central YEAR BUILT 1961
COMMUNITY Suburban Plains GARAGE SPACES 5.0
COUNTY Boulder STATUS Active
PROPERTY TYPE(S) Single Family

SCHOOLS
Elementary School Douglass
Jr. High School Platt
High School Fairview


ADDITIONAL DETAILS
AIR Central Air
AIR CONDITIONING Yes
APPLIANCES Dishwasher, Oven, Refrigerator
AREA Suburban Plains
BASEMENT None
CONSTRUCTION Vinyl Siding
GARAGE Yes
HEAT Forced Air
HOA DUES |
INTERIOR Open Floorplan
LOT 0.98 acre(s)
PARKING Heated Garage, Oversized, Detached
PRIMARY ON MAIN Yes
SEWER Septic Tank
STORIES 1
STYLE Ranch
SUBDIVISION South Central
TAXES 7196
UTILITIES Natural Gas Available
WATER Well
MORTGAGE CALCULATOR
   

TOTAL MONTHLY PAYMENT

0
P
I
*Estimate only

SATELLITE VIEW



 
CONTACT US ABOUT 6833 FAIRVIEW DR
 / 
We respect your online privacy and will never spam you. By submitting this form with your telephone number you are consenting for Tim Goodacre to contact you even if your name is on a Federal or State "Do not call List".

Listing provided by Karolyn Merrill, RE/MAX of Boulder, Inc, 3034415642
Last updated: 10/1/25 3:29 AM PDT

Listing information is provided exclusively for consumers' personal, non-commercial use and may not be used for any purpose other than to identify prospective properties consumers may be interested in purchasing.

Information deemed reliable but not guaranteed by the MLS

Information source: Information and Real Estate Services, LLC. Provided for limited non-commercial use only under IRES Rules. Copyright IRES 2025.

This IDX solution is (c) Diverse Solutions 2025.