Save to Favorites
Print
Share

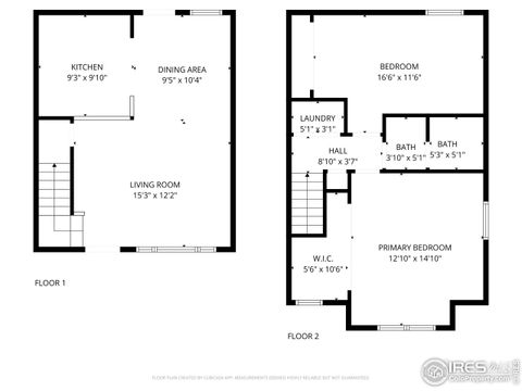
BUYER MUST BE QUALIFIED THROUGH THE CITY OF BOULDER AFFORDABLE HOUSING PROGRAM Beautiful townhome with mountain views, close to Skunk Creek Path, CU Research Center, many parks, ball fields, and schools. Main level hardwood floors, gas range. Storage room outside back door Parking for 2 with 1 carport and 1 uncovered parking space. Easy access to Foothills. See Open House information to view property. https://bouldercolorado.gov/homeownership/permanently-affordable-homes-program

DAYS ON MARKET 13 LAST UPDATED 10/14/2025
TRACT Wellman Creek Twnhs YEAR BUILT 1997
COMMUNITY Boulder GARAGE SPACES 1.0
COUNTY Boulder STATUS Active
PROPERTY TYPE(S) Condo/Townhouse/Co-Op

SCHOOLS
Elementary School Creekside
Jr. High School Manhattan
High School Boulder


ADDITIONAL DETAILS
AIR Central Air
AIR CONDITIONING Yes
AMENITIES Maintenance Grounds, Maintenance Structure, Snow Removal, Trash, Utilities
APPLIANCES Dishwasher, Dryer, Microwave, Oven, Refrigerator, Washer
AREA Boulder
BASEMENT None
GARAGE Yes
HEAT Forced Air
HOA DUES 420|Monthly
INTERIOR Open Floorplan
LOT 1307 sq ft
LOT DESCRIPTION Level
PARKING Carport
STORIES 2
STYLE Contemporary/Modern
SUBDIVISION Wellman Creek Twnhs
TAXES 699
UTILITIES Natural Gas Available, Electricity Available
WATER Public
MORTGAGE CALCULATOR
   

TOTAL MONTHLY PAYMENT

0
P
I
*Estimate only

SATELLITE VIEW



 
CONTACT US ABOUT 3970 COLORADO AVE K
 / 
We respect your online privacy and will never spam you. By submitting this form with your telephone number you are consenting for Tim Goodacre to contact you even if your name is on a Federal or State "Do not call List".

Listing provided by David Quinn, Coldwell Banker Realty 02, 3033254579
Last updated: 10/24/25 11:41 AM PDT

Listing information is provided exclusively for consumers' personal, non-commercial use and may not be used for any purpose other than to identify prospective properties consumers may be interested in purchasing.

Information deemed reliable but not guaranteed by the MLS

Information source: Information and Real Estate Services, LLC. Provided for limited non-commercial use only under IRES Rules. Copyright IRES 2025.

This IDX solution is (c) Diverse Solutions 2025.