Save to Favorites
Print
Share

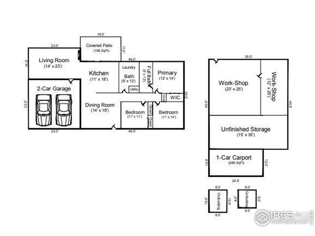
First Time Ever on the Market! Welcome to this rare gem in desirable North Longmont- with no HOA, no covenants and no metro district. This home that offers the tranquility of country living along with an extra 1400sf of workshop and storage space; while still just a short drive to shops, restaurants, and everyday conveniences. Nestled on a generous lot just under an acre, this property provides the space, privacy, and freedom you won't find in typical suburban neighborhoods. Inside, discover gleaming hardwood floors and custom-milled baseboards that highlight the home's quality construction. The renovated, spacious kitchen is the heart of the home-beautifully designed with ample soft-close cabinetry and quartz counter tops, ideal for everyday living and entertaining. Outdoors, the property truly shines. In addition to the covered patio, mature trees and expansive yard, you'll find two large shops, two storage sheds, and a carport sized for an RV-perfect for projects, hobbies, equipment, or recreational vehicles. With its Rural Residential zoning, the property provides flexibility for a variety of uses while still being just minutes from Longmont's vibrant downtown, schools, and conveniences. This one-of-a-kind property has never before been offered for sale. Don't miss the opportunity to enjoy a lifestyle that's more open, spacious, and connected to Colorado living.

DAYS ON MARKET 8 LAST UPDATED 10/16/2025
TRACT Anhawa Manor 3 YEAR BUILT 1973
COMMUNITY Suburban Plains GARAGE SPACES 2.0
COUNTY Boulder STATUS Active
PROPERTY TYPE(S) Single Family

SCHOOLS
Elementary School Hygiene
Jr. High School Westview
High School Longmont


ADDITIONAL DETAILS
AIR Central Air
AIR CONDITIONING Yes
APPLIANCES Dishwasher, Dryer, Microwave, Oven, Refrigerator, Washer
AREA Suburban Plains
BASEMENT None
FIREPLACE Yes
GARAGE Yes
HEAT Forced Air
HOA DUES |
INTERIOR High Speed Internet, Open Floorplan
LOT 0.83 acre(s)
LOT DESCRIPTION Level
PARKING Attached
PRIMARY ON MAIN Yes
SEWER Septic Tank
STORIES 1
STYLE Ranch
SUBDIVISION Anhawa Manor 3
TAXES 4263
UTILITIES Natural Gas Available, Electricity Available, Cable Available
WATER Public
MORTGAGE CALCULATOR
   

TOTAL MONTHLY PAYMENT

0
P
I
*Estimate only

SATELLITE VIEW



 
CONTACT US ABOUT 12788 SHERAMDI ST
 / 
We respect your online privacy and will never spam you. By submitting this form with your telephone number you are consenting for Tim Goodacre to contact you even if your name is on a Federal or State "Do not call List".

Listing provided by Danielle Miller, Coldwell Banker Realty 02, 7193304801
Last updated: 10/23/25 1:20 PM PDT

Listing information is provided exclusively for consumers' personal, non-commercial use and may not be used for any purpose other than to identify prospective properties consumers may be interested in purchasing.

Information deemed reliable but not guaranteed by the MLS

Information source: Information and Real Estate Services, LLC. Provided for limited non-commercial use only under IRES Rules. Copyright IRES 2025.

This IDX solution is (c) Diverse Solutions 2025.