Save to Favorites
Print
Share

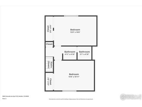
Move-in ready condo offering a low-maintenance lifestyle convenient to CU Boulder campus, downtown Boulder and transportation! Situated on the ground floor, this light and bright updated unit offers an open-concept main level with large windows and a sliding glass door that opens up to the private patio. The kitchen is updated with newer appliances. Upstairs, you will find the two large bedrooms and the updated full bathroom. Shared coin laundry facilities are conveniently located nearby the unit. Parking space 568 is assigned to the unit + one general permit for onsite parking. Plenty of trails and recreation opportunities at nearby Chautauqua Park and Green Mountain Memorial Park. Ready for quick closing and possession. Dogs and cats allowed for owner/occupants. Only cats allowed for tenants.

DAYS ON MARKET 58 LAST UPDATED 2/2/2026
TRACT Wimbledon Condos Ph I YEAR BUILT 1969
COMMUNITY Boulder GARAGE SPACES 1.0
COUNTY Boulder STATUS Active
PROPERTY TYPE(S) Condo/Townhouse/Co-Op

SCHOOLS
Elementary School Creekside
Jr. High School Manhattan
High School Fairview

PRICE HISTORY
Prior to Feb 2, '26 $410,000
Feb 2, '26 - Today $395,000


ADDITIONAL DETAILS
AIR Central Air
AIR CONDITIONING Yes
AMENITIES Cable TV, Insurance, Maintenance Grounds, Security, Sewer, Snow Removal, Trash, Utilities, Water
APPLIANCES Dishwasher, Electric Range, Refrigerator
AREA Boulder
BASEMENT None
CONSTRUCTION Brick, Frame
GARAGE Yes
HEAT Baseboard
HOA DUES 467|Monthly
INTERIOR High Speed Internet, Open Floorplan, Walk-In Closet(s)
LOT DESCRIPTION Level
PARKING Assigned
SEWER Public Sewer
STORIES 2
STYLE Contemporary
SUBDIVISION Wimbledon Condos Ph I
TAXES 2064
UTILITIES Natural Gas Available, Electricity Available, Cable Available
WATER Public
MORTGAGE CALCULATOR
   

TOTAL MONTHLY PAYMENT

0
P
I
*Estimate only

SATELLITE VIEW



 
CONTACT US ABOUT 3000 COLORADO AVE F-122
 / 
We respect your online privacy and will never spam you. By submitting this form with your telephone number you are consenting for Tim Goodacre to contact you even if your name is on a Federal or State "Do not call List".

Listing provided by Rene Vellinga, RE/MAX Alliance-Boulder, 3038181689
Last updated: 2/4/26 9:51 AM PST

Listing information is provided exclusively for consumers' personal, non-commercial use and may not be used for any purpose other than to identify prospective properties consumers may be interested in purchasing.

Information deemed reliable but not guaranteed by the MLS

Information source: Information and Real Estate Services, LLC. Provided for limited non-commercial use only under IRES Rules. Copyright IRES 2026.

This IDX solution is (c) Diverse Solutions 2026.