Save to Favorites
Print
Share

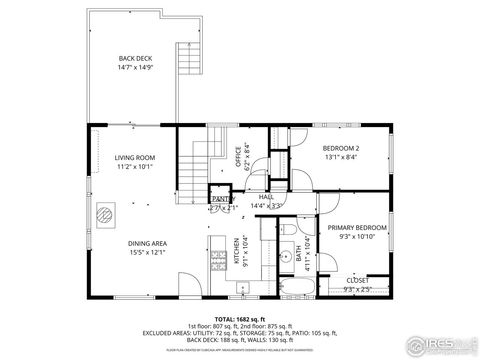
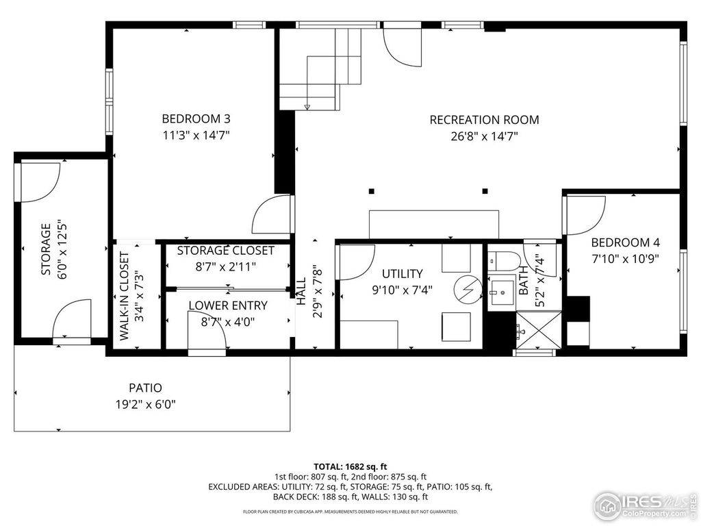
STELLAR MOUNTAIN VIEWS in Majestic Heights! Wake up to breathtaking western mountain views from this beautifully maintained raised-ranch gem in desirable Majestic Heights. Designed to maximize light and livability, the sun-soaked main level features an open-concept layout connecting the living, dining, and kitchen areas-perfect for both everyday living and entertaining. 4 skylights bathe the space in natural light, highlighting the refinished wood floors and thoughtful updates throughout. The kitchen was cleverly remodeled in 2023, offering abundant cabinetry, a handy pantry, and a perfectly positioned sink with stunning mountain views. The brand-new sliding glass door leads to a convenient deck-ideal for relaxing evenings and outdoor gatherings.A newly added interior stairway seamlessly connects both levels and creates a smart, open-feeling office space. The lower level enjoys abundant natural light with mostly above-grade square footage, front and back entrances, two additional bedrooms, a welcoming entry with a large storage closet, and a versatile wet bar/kitchenette-ideal for multigenerational living, or flex use. Both bathrooms have been tastefully updated, and newer windows enhance comfort and efficiency throughout. Outside, a convenient 75 SF storage shed is attached on the north side of the home, and 10 newly planted oak, locust, and pear trees are already thriving, adding beauty and future value to the landscape. Enjoy quiet streets, spectacular views, and a strong sense of community in Majestic Heights-this is Colorado living at its finest. OPEN SUNDAY 1-3

DAYS ON MARKET 1 LAST UPDATED 2/19/2026
TRACT Majestic Heights 1 YEAR BUILT 1962
COMMUNITY Boulder GARAGE SPACES 2.0
COUNTY Boulder STATUS Active
PROPERTY TYPE(S) Single Family

SCHOOLS
Elementary School Creekside
Jr. High School Southern Hills
High School Fairview


ADDITIONAL DETAILS
AIR Ceiling Fan(s), Central Air
AIR CONDITIONING Yes
APPLIANCES Dishwasher, Disposal, Dryer, Gas Range, Microwave, Refrigerator, Washer
AREA Boulder
CONSTRUCTION Frame
GARAGE Yes
HEAT Forced Air, Wood Stove
HOA DUES |
INTERIOR High Speed Internet, Open Floorplan, Pantry
LOT 6970 sq ft
LOT DIMENSIONS 7187
PARKING Off Street
SEWER Public Sewer
STYLE In-Law Area
SUBDIVISION Majestic Heights 1
TAXES 4907
UTILITIES Natural Gas Available, Electricity Available
VIEW Yes
VIEW DESCRIPTION Hills
WATER Public
MORTGAGE CALCULATOR
   

TOTAL MONTHLY PAYMENT

0
P
I
*Estimate only

SATELLITE VIEW



 
CONTACT US ABOUT 4445 SQUIRES CIR
 / 
We respect your online privacy and will never spam you. By submitting this form with your telephone number you are consenting for Tim Goodacre to contact you even if your name is on a Federal or State "Do not call List".

Listing provided by Terry Larson, RE/MAX of Boulder, Inc, 3035893028
Last updated: 2/20/26 2:21 AM PST

Listing information is provided exclusively for consumers' personal, non-commercial use and may not be used for any purpose other than to identify prospective properties consumers may be interested in purchasing.

Information deemed reliable but not guaranteed by the MLS

Information source: Information and Real Estate Services, LLC. Provided for limited non-commercial use only under IRES Rules. Copyright IRES 2026.

This IDX solution is (c) Diverse Solutions 2026.