Save to Favorites
Print
Share

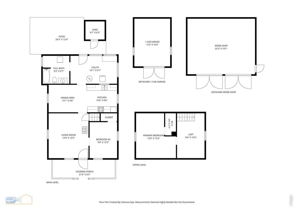
Situated on a generous 0.78-acre lot in a peaceful, quiet setting with mountain views from the lot, this unique property offers a rare opportunity to own a piece of local history. The home has been officially landmarked by Boulder County, recognizing its historic significance and distinctive character. The well is currently not operational, and the home does require work, making it an ideal project for those looking to invest in a truly special property. The layout includes a main floor living room that flows into the eat-in kitchen area. There is a main level bedroom with a main level bathroom and upstairs has an additional bedroom with loft area providing flexible living space for all. In addition to the main home, the property features a large detached workshop-perfect for hobbies, storage, or creative pursuits-as well as a detached garage for added convenience. Don't miss this opportunity to make this special and unique property yours! Property being sold "as is".

DAYS ON MARKET 3 LAST UPDATED 2/24/2026
TRACT Valmont YEAR BUILT 1900
COMMUNITY Suburban Plains GARAGE SPACES 1.0
COUNTY Boulder STATUS Active
PROPERTY TYPE(S) Single Family

SCHOOLS
Elementary School Douglass
Jr. High School Platt
High School Boulder


ADDITIONAL DETAILS
APPLIANCES Dryer, Electric Range, Refrigerator, Washer
AREA Suburban Plains
BASEMENT None
CONSTRUCTION Frame
GARAGE Yes
HOA DUES |
INTERIOR Eat-in Kitchen
LOT 0.78 acre(s)
LOT DESCRIPTION Level, Wooded
LOT DIMENSIONS 33873
PARKING Detached
SEWER Septic Tank
STORIES 2
STYLE Fixer-Upper
SUBDIVISION Valmont
TAXES 4551
UTILITIES Natural Gas Available, Electricity Available, Cable Available
VIEW Yes
VIEW DESCRIPTION Hills
WATER Well
MORTGAGE CALCULATOR
   

TOTAL MONTHLY PAYMENT

0
P
I
*Estimate only

SATELLITE VIEW



 
CONTACT US ABOUT 6087 INDIAN RD
 / 
We respect your online privacy and will never spam you. By submitting this form with your telephone number you are consenting for Tim Goodacre to contact you even if your name is on a Federal or State "Do not call List".

Listing provided by Kathleen Winegardner, Kearney Realty, 3034406464
Last updated: 2/27/26 1:34 AM PST

Listing information is provided exclusively for consumers' personal, non-commercial use and may not be used for any purpose other than to identify prospective properties consumers may be interested in purchasing.

Information deemed reliable but not guaranteed by the MLS

Information source: Information and Real Estate Services, LLC. Provided for limited non-commercial use only under IRES Rules. Copyright IRES 2026.

This IDX solution is (c) Diverse Solutions 2026.