Save to Favorites
Print
Share

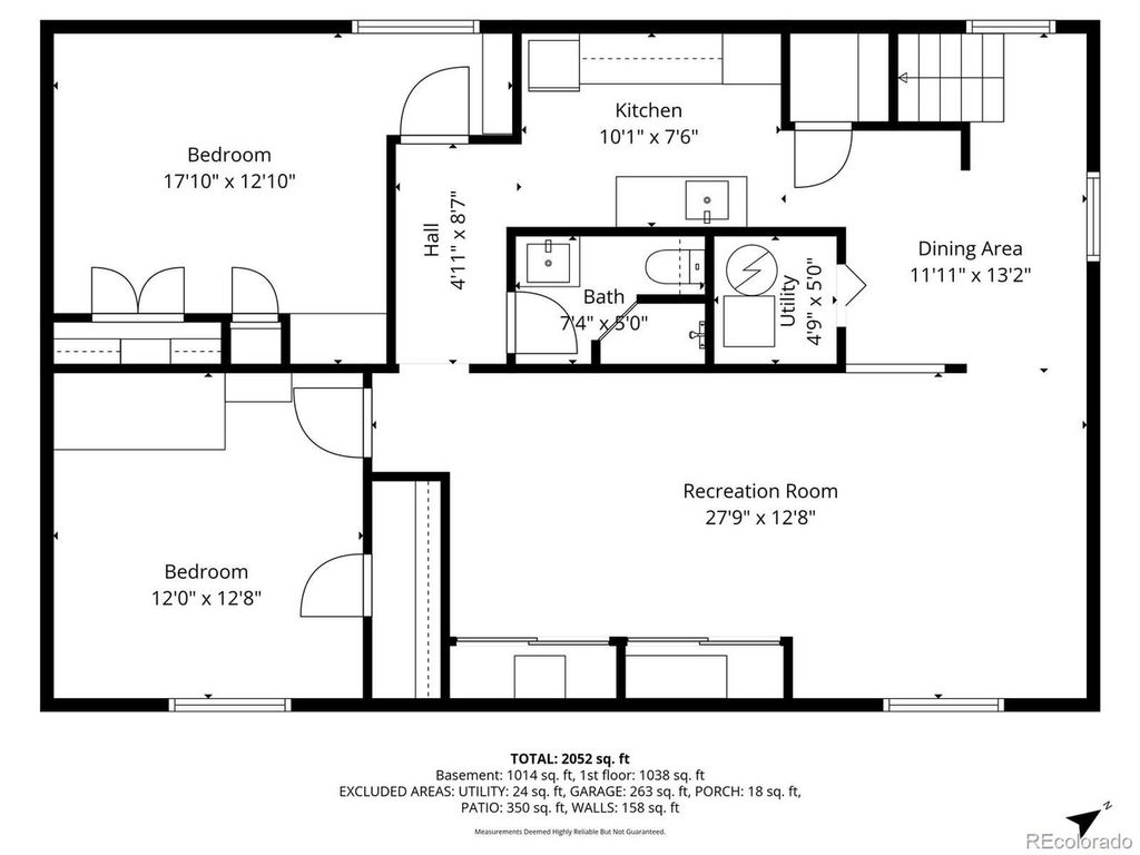
Welcome home to one of South Boulder's most desirable neighborhoods! Designed to seamlessly connect main living spaces, the clean and natural flow of this fabulous home is conducive to everyday living whether indoors or out. The original hardwood floors add warmth and character, while abundant windows bathe the home in natural light. The thoughtfully updated kitchen with granite counters, custom cabinetry, and stainless appliances, serves to accentuate the welcoming layout. Perfect for summer grilling and entertaining, the generous patio and large backyard are easily accessible and fully fenced. Landscaped with extensive flagstone, mature shade trees, a lush lawn, and a versatile shed for storage or play. The well apportioned finished basement is ideal for extended family stays, guests, potential rental income, or multi-generational living. It holds two spacious bedrooms, each with egress windows, a bathroom, a huge family room, and additional storage. The modern kitchenette with live edge wood counters includes a sink, refrigerator, and a microwave. A vent pipe has been installed, which would allow for the option of installing a stove in this space in the future. The flexible lower level adds significant value to this already great property. This home has been very well-maintained and move-in ready. Recent updates include new hot water tank-2026, full replacement sewer line-2024, HVAC-2019, roof replaced-2017, rear fence and garage door-2014, and windows-2007. Great proximity to the mountains! Easy access to countless trails, parks, and the popular Table Mesa shopping and dining area, just a short walk or bike ride away. This turnkey home is thoughtfully appointed and move in ready.

DAYS ON MARKET 1 LAST UPDATED 3/26/2026
TRACT Martin Acres YEAR BUILT 1960
COMMUNITY Boulder GARAGE SPACES 1.0
COUNTY Boulder STATUS Active
PROPERTY TYPE(S) Single Family

SCHOOLS
Elementary School Creekside
Jr. High School Manhattan
High School Fairview


ADDITIONAL DETAILS
AIR Ceiling Fan(s), Wall/Window Unit(s)
AIR CONDITIONING Yes
APPLIANCES Dishwasher, Disposal, Dryer, Microwave, Washer
AREA Boulder
BASEMENT Partially Finished, Yes
CONSTRUCTION Brick, Concrete
GARAGE Yes
HEAT Forced Air
HOA DUES |
INTERIOR Eat-in Kitchen, Kitchen Island, Open Floorplan
LOT 6970 sq ft
LOT DESCRIPTION Paved
LOT DIMENSIONS 7180
PARKING Attached
SEWER Public Sewer
STORIES 1
STYLE Contemporary, In-Law Area
SUBDIVISION Martin Acres
TAXES 4685
UTILITIES Natural Gas Available, Cable Available
WATER Public
MORTGAGE CALCULATOR
   

TOTAL MONTHLY PAYMENT

0
P
I
*Estimate only

SATELLITE VIEW



 
CONTACT US ABOUT 135 S 42ND ST
 / 
We respect your online privacy and will never spam you. By submitting this form with your telephone number you are consenting for Tim Goodacre to contact you even if your name is on a Federal or State "Do not call List".

Listing provided by Debbie Cooper-George, Coldwell Banker Realty 14, yourhomebygeorge@gmail.com
Last updated: 3/26/26 1:57 PM PDT

Listing information is provided exclusively for consumers' personal, non-commercial use and may not be used for any purpose other than to identify prospective properties consumers may be interested in purchasing.

Information deemed reliable but not guaranteed by the MLS

Information source: Information and Real Estate Services, LLC. Provided for limited non-commercial use only under IRES Rules. Copyright IRES 2026.

This IDX solution is (c) Diverse Solutions 2026.