Save to Favorites
Print
Share

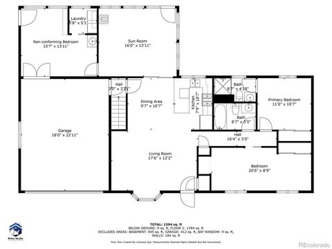
Rare opportunity to own in Heatherwood, one of Boulder's most sought-after neighborhoods, just a short distance from the local elementary school and surrounded by mature trees and established homes. This single-level ranch sits on a corner lot with a large yard, garden areas, and a storage shed, offering space to grow, play, and personalize. Hard-to-find RV/boat parking makes this home ideal for buyers who love Colorado's outdoor lifestyle. Inside, you'll find solid bones with room to add value. The unfinished basement offers clear potential for additional living space, bedrooms, or a home office. A versatile workshop/flex room with 220V power is perfect for hobbies, a home gym, or creative studio or convert it to the 3rd bedroom. Unwind year-round in the sunroom retreat, featuring a fireplace and hot tub, a unique bonus space rarely found in this neighborhood. Priced at $675,000, the lowest in Heatherwood, with potential closing cost or rate buy-down incentives available provided by our preferred lender. An excellent opportunity to secure a Boulder address, customize over time, and build long-term equity

DAYS ON MARKET 2 LAST UPDATED 2/11/2026
TRACT Heatherwood YEAR BUILT 1971
COMMUNITY Suburban Plains GARAGE SPACES 2.0
COUNTY Boulder STATUS Active
PROPERTY TYPE(S) Single Family

SCHOOLS
Elementary School Heatherwood
Jr. High School Platt
High School Fairview


ADDITIONAL DETAILS
AIR Ceiling Fan(s), Central Air
AIR CONDITIONING Yes
APPLIANCES Dishwasher, Disposal, Dryer, Microwave, Refrigerator, Washer
AREA Suburban Plains
BASEMENT Full, Unfinished, Yes
CONSTRUCTION Frame
EXTERIOR Dog Run
FIREPLACE Yes
GARAGE Yes
HEAT Forced Air
HOA DUES |
LOT 10454 sq ft
LOT DESCRIPTION Corner Lot, Paved
LOT DIMENSIONS 10274
PARKING Attached
SEWER Public Sewer
STORIES 1
SUBDIVISION Heatherwood
TAXES 4294
UTILITIES Electricity Available, Cable Available
WATER Public
MORTGAGE CALCULATOR
   

TOTAL MONTHLY PAYMENT

0
P
I
*Estimate only

SATELLITE VIEW



 
CONTACT US ABOUT 7646 CONCORD DR
 / 
We respect your online privacy and will never spam you. By submitting this form with your telephone number you are consenting for Tim Goodacre to contact you even if your name is on a Federal or State "Do not call List".

Listing provided by Rick Cavallaro, Rhino Realty Pros, Rick@RhinoRealtyPros.com
Last updated: 2/13/26 12:04 AM PST

Listing information is provided exclusively for consumers' personal, non-commercial use and may not be used for any purpose other than to identify prospective properties consumers may be interested in purchasing.

Information deemed reliable but not guaranteed by the MLS

Information source: Information and Real Estate Services, LLC. Provided for limited non-commercial use only under IRES Rules. Copyright IRES 2026.

This IDX solution is (c) Diverse Solutions 2026.