Save to Favorites
Print
Share

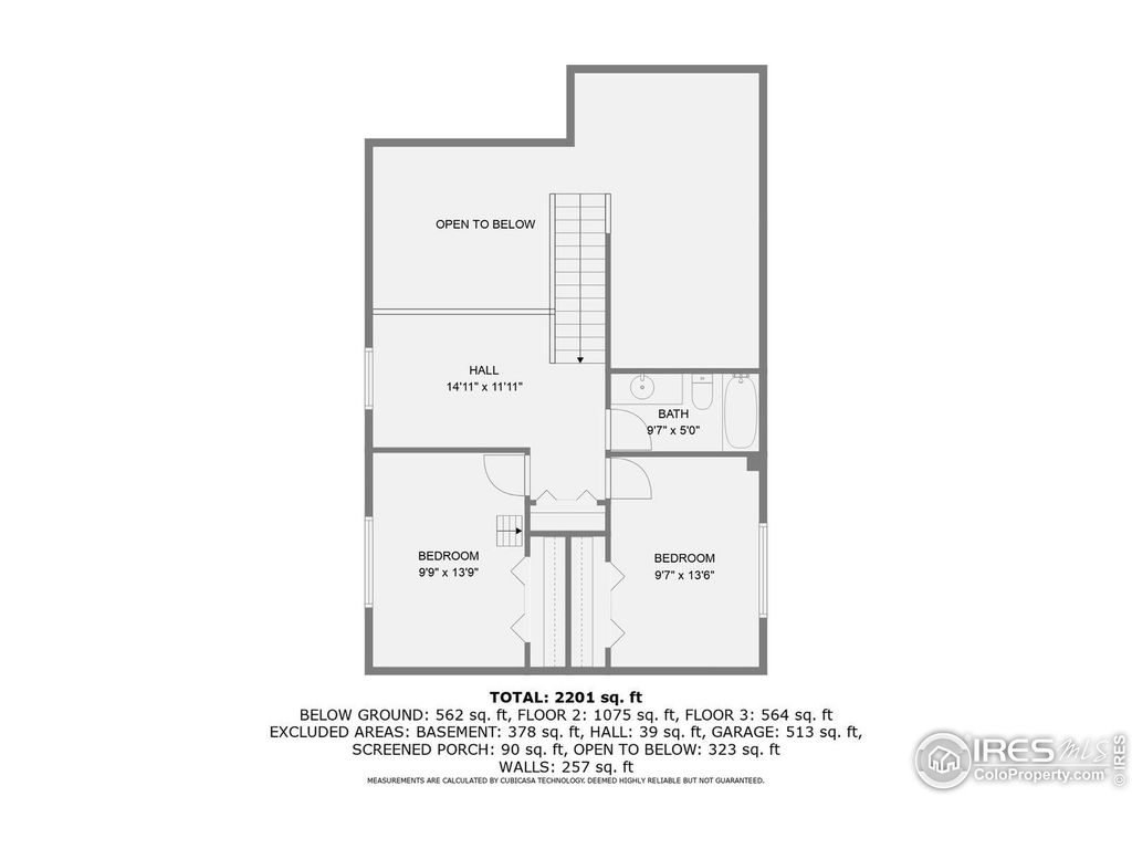
Enjoy community amenities including two pools, three tennis courts, open space, and one of the area's lowest HOA fees. Low-maintenance yard with irrigation -don't spend weekends working outside when you could be enjoying nearby parks and walking paths instead. Ideal for buyers looking for a smart entry into the Boulder market at a more attainable price point. Custom home in Winding Trail Village! This spacious 4-bedroom, 3-bath residence has been lovingly maintained by the original owners and offers solid construction with truly great bones-ready for cosmetic updates to make it shine and create instant equity. Recent improvements include brand-new furnace and A/C plus fresh interior paint and brand-new carpet throughout, providing a clean, move-in-ready starting point. The ideal layout features a main-level primary suite, bright sunroom, inviting 3-season porch, loft/office space, and a cozy wood-burning fireplace. The finished basement includes an additional bedroom, 3/4 bath, and abundant storage. Situated on a quiet street with ample parking and direct access to Boulder's scenic trail network. Free 1-point rate buydown available through preferred lender Lauren Nygren. Reach out for details!

DAYS ON MARKET 91 LAST UPDATED 11/12/2025
TRACT Winding Trail Village YEAR BUILT 1983
COMMUNITY Boulder GARAGE SPACES 2.0
COUNTY Boulder STATUS Active
PROPERTY TYPE(S) Single Family

SCHOOLS
Elementary School Crest View
Jr. High School Centennial
High School Boulder

PRICE HISTORY
Prior to Nov 12, '25 $1,025,000
Nov 12, '25 - Today $995,000


ADDITIONAL DETAILS
AIR Ceiling Fan(s), Central Air, Wall/Window Unit(s)
AIR CONDITIONING Yes
AMENITIES Trash
APPLIANCES Dishwasher, Disposal, Microwave, Oven, Refrigerator
AREA Boulder
BASEMENT Full, Partially Finished, Yes
FIREPLACE Yes
GARAGE Yes
HEAT Forced Air, Wood Stove
HOA DUES 94.7|Monthly
INTERIOR Cathedral Ceiling(s), High Ceilings
LOT 4356 sq ft
LOT DESCRIPTION Cul-De-Sac
PARKING Garage Door Opener, Attached
PRIMARY ON MAIN Yes
SEWER Public Sewer
STORIES 2
SUBDIVISION Winding Trail Village
TAXES 5102
UTILITIES Natural Gas Available, Electricity Available
WATER Public
MORTGAGE CALCULATOR
   

TOTAL MONTHLY PAYMENT

0
P
I
*Estimate only

SATELLITE VIEW



 
CONTACT US ABOUT 2736 WINDING TRAIL DR
 / 
We respect your online privacy and will never spam you. By submitting this form with your telephone number you are consenting for Tim Goodacre to contact you even if your name is on a Federal or State "Do not call List".

Listing provided by Janet Raymer, WK Real Estate, 3035239859
Last updated: 12/31/25 6:22 AM PST

Listing information is provided exclusively for consumers' personal, non-commercial use and may not be used for any purpose other than to identify prospective properties consumers may be interested in purchasing.

Information deemed reliable but not guaranteed by the MLS

Information source: Information and Real Estate Services, LLC. Provided for limited non-commercial use only under IRES Rules. Copyright IRES 2025.

This IDX solution is (c) Diverse Solutions 2025.