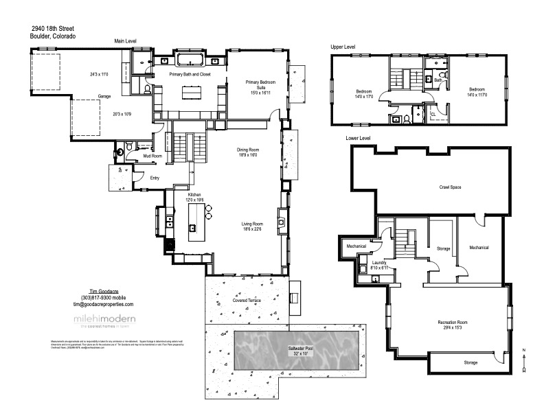
Set on a rare quarter-acre in the heart of Boulder, 2940 18th Street is a newly constructed architectural residence by Annette and Dennis Martin, designed to live as beautifully outdoors as it does within. Clean lines, open rafter eaves, and a standing seam metal roof frame a series of curated living spaces, where a south-facing great room and terrace capture natural light and views, seamlessly extending to a private pool courtyard anchored by a year-round saltwater pool, limestone hardscaping, and an outdoor kitchen. Inside, the home unfolds with an open-concept layout, vaulted ceilings, and a refined material palette-European white oak floors, custom oak cabinetry, and bespoke steel detailing throughout. The kitchen is a true centerpiece, appointed with Gaggenau and Sub-Zero appliances and striking quartzite surfaces, while thoughtfully integrated millwork enhances every space from the dining room to the primary suite and mudroom. Custom lighting from renowned international designers, artisan tile, and curated fixtures elevate the interiors with a quiet, modern luxury. Designed for both performance and longevity, the home features a HERS score of 8, a 9.24kW solar array, Tesla Powerwall battery storage, and advanced home automation. Completed in 2026, this is a rare opportunity to own a meticulously crafted, design-forward home that balances sustainability, sophistication, and seamless indoor-outdoor living.

